Joko maatilaltasi löytyy Tasalavakärry? Tämä maatilojen ykkönen tekee veden sekä heinän kuljetuksesta helppoa ja aikaa säästyy muihin töihin (tiedämme, että niitä riittää). Löytyi maatilaltasi pientyökone mönkijästä pientraktoriin, on Tasalavakärry paras valinta työjuhdaksi!
Tasalavakärry on suunniteltu erityisesti kevyen tavaran kuljettamiseen. Laidat saat halutessasi pois, mikä luo entistä enemmän käyttömahdollisuuksia, kuten pidemmän tavaran kuljettamisen. Kärry on ketterä ja soveltuu myös maastotöihin, esimerkiksi salaojaputkien asentamiseen!
Kaiken touhuamisen jälkeen on myös tärkeää, että saat Tasalavakärryn pestyä kätevästi painepesurilla. Tämä onnistuu näppärän kipin ansiosta. Enemmän tehokkuutta vähemmän tuskailua!
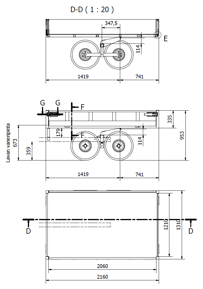
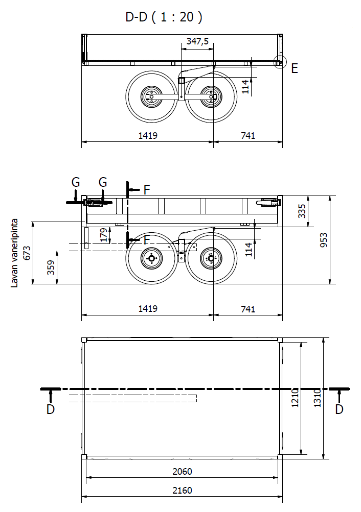
Helppo kippaus kaasujousien avulla. Kippauskulma: 47°. Irroitettavat kulmapalat.
Mitat lava: 2020 x 1250 x 300 cm
Kuorma: Kantavuus 1500 kg (pienellä mönkijällä suosittelemme turvalliseksi kuormaksi kuljetta noin 1000 kg).
Värikoodi musta: RAL9005
Värikoodi punainen: RAL3020
Lavan toimituskulut lisätään hintaan. Asennusta tarvitaan